Intersnack
Intersnack2
MediaBroadcast1
Grundriss1 Grundriss2
CyclosDesign Ed. Züblin 2 FK360
MercuriUrval Bauindustrieverband
item5

Wenn Ihr Mieter individuelle Bürogrundrisse und eine Effizienz steigernde Workplace Strategy fordert, haben Sie mit uns den richtigen Ansprechpartner. Im Zusam-
menspiel mit Ihnen und Ihrem Generalunternehmer planen wir ein Büro in allen Einzelheiten und betreuen die Realisierung, damit Sie am Ende in zufriedene Gesichter blicken können.

Fragen Ihre Mieter Sie nach jemanden der ihre Etage gestalten kann?

Intersnack Group, Düsseldorf
Knabberspezialist Intersnack Group wünschte sich einen aufgelockerten Bürogrundriss, mehrere Konferenzräume und Flure mit Coffee-Points, die zugleich Orte für Kommunikation zwischen den Mitarbeitern sind. Produktpräsentationen sowie Darstellung der Marken und Standorte des Unternehmens transportieren für den Besucher die Profession von Intersnack. Bildpaare zeigen jeweils Pflanze und Rohprodukt, aus dem die Intersnack-Marken köstliche Snacks bereiten.

cyclos design, Münster
Die Kommunikationsagentur cyclos design ist in neue Räumlichkeiten im Münsteraner Hafen - der Kreativ-Meile von Münster - gezogen. Friedhelm Kuche 360 hat für das 30-köpfige Team den Workspace, Konferenzräume und den Empfangsbereich gestaltet.

Ed. Züblin AG Direktionsetage, Düsseldorf
Die Gestaltung vereinbart selbstbewusst Zukunft mit behaglicher Gesprächsatmosphäre. Stürzende Glaswände, deckenhängende Monitore über leuchtenden Besprechungstischen, modernste Medientechnik vermitteln, dass an diesem Ort an Zukünftigem gearbeitet wird.

Mercuri Urval, Düsseldorf
Für die Personalberatung mit schwedischen Wurzeln entstanden unterschiedliche Konferenzräume, variable Räume für Personaltests
und ein repräsentativer Empfangsbereich. Im Pausenbereich dann
eine Hommage an die Heimat.

Bauindustrieverband NRW, Düsseldorf
Die in vielen Gebäuden mit rigiden Bürozellenstrukturen fehlenden Ressourcen für einen Empfangsbereich wurden durch Entfernen einer ehemaligen Bürowand geschaffen. Gliedernde Funktionskuben sind
mit Grafiken versehen, die abstrahiert das Verbandsgebiet zeigen.

Up
FK360Logo1
item23

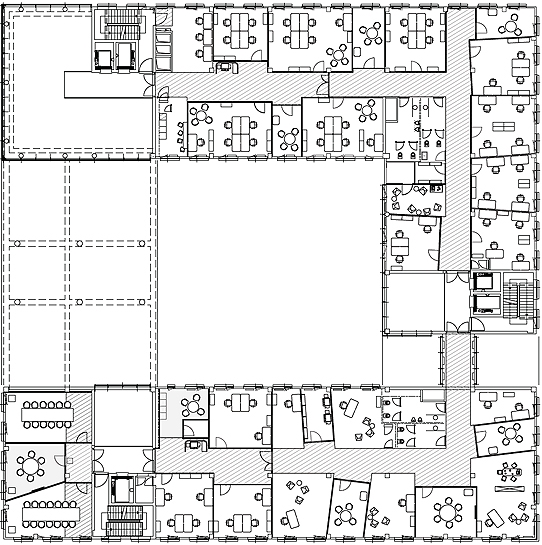
MEDIA BROADCAST im KölnCubus
Läuft man durch die Flure vieler Großbüros, ist man schon nach der zweiten Abbiegung auf dem Weg von der Toilette zum Konferenzraum irritiert. Wo ist noch gleich der Eingang zum Konferenzraum, hätte ich doch links abbiegen müssen? Endlose Flure, die alle gleich aussehen. Wichtige Räume, die man von außen oft gar nicht erkennt.

Erinnern wir uns an die Gassen alter Städte. Gewundene Wege, vor- und zurückspringende Gebäude, da wo es etwas breiter wurde, ein Brunnen. Plötzlich ein Durchblick zwischen den Häusern: Der Fluss, oder der Park. Eine Kirche vielleicht. Städtebauliche Situationen, an die man sich erinnert. Bei der Kirche links halten, durch die dunkle Gasse, beim roten Haus rechts.

Für MEDIA BROADCAST hat Friedhelm Kuche 360 die städtebaulichen Situationen auf den Bürogrundriss übertragen.

Im KölnCubus in Köln Deutz hat der Übertragungsspezialist elektronischer Daten rund 4500 qm auf drei Etagen gemietet. Das quadratische Gebäude, dass sich um einen Hof entwickelt, weist pro Etage zwischen drei und vier Flurspangen auf, die so gestaltet wurden, dass die einzelnen Spangen aufgrund ihrer Ausformung unterscheidbarer und wiedererkennbarer sind. Es gibt engere dunkle Bereiche, Flure, die sich weiten und verengen, gerade stehende versetzte Büroräume und schräg Stehende. Durch großzügig verglaste Bereiche entstehen an einzelnen Stellen Durchblicke, ein anderes Mal hat man das Gefühl in einem riesigen Flur einzelne „Gebäude“ stehen zu sehen.

Unterstützt durch die unterschiedliche Beleuchtung mit Up- und Downlights im großzügigen Wechsel, sind sehr lebhafte und prägnante Räume entstanden, die Besuchern und Mitarbeitern die Orientierung erleichtern und für spannendes Ambiente sorgen.

item35
Was wir für Sie machen

Innenarchitektur

• Foyers und öffentliche Bereiche

• Mieterausbauplanung

• Workplace Strategy

• Marketing Rooms

• Lichtdesign

• Leitsysteme

• Mieterkennzeichnung

Real Estate Marketing

• Namensfindung und Projektsignet

• Einladungskarten und Broschüren

Bauwerbung

• Exposés und Investment Memoranden

• Projektwebsites

• 3D Visualisierungen

Up